Active

Listing Tools

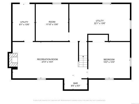
Live, Work, and Create at 46 Newberry Road, East Windsor, CT Welcome to 46 Newberry Road-a truly rare and versatile property that combines spacious residential living with exceptional business or agricultural potential. Situated on a generous lot in a convenient East Windsor location, this one-of-a-kind property offers over 2,300 square feet of finished living space, 6 spacious bedrooms, 2 full bathrooms, and an array of features that make it ideal for a wide range of uses. Currently used as a residential home, this property is zoned industrial, opening the door to countless possibilities. Whether you're an entrepreneur looking to operate a small business, a tradesperson needing storage and workspace, or someone dreaming of a hobby farm or creative studio, this property gives you the freedom to bring your vision to life-all while enjoying the comforts of a well-maintained home. Inside, you'll find a welcoming layout with room for everyone and everything. A bright sunroom offers the perfect spot to relax and take in the surrounding views, while the finished rec room in the basement provides additional space for entertaining, a home office, gym, or additional creative use. Each of the six bedrooms offers flexibility for guest rooms, studios, or shared living arrangements, and the two full bathrooms are spacious and well-appointed.

Property Details of 46 Newberry Road

Map Location

Driving Directions

Listed by Bill Arzt C. Arzt of Realty One Group Cutting Edge ((860) 250-1002)

The data relating to real estate for sale on this website appears in part through the SmartMLS Internet Data Exchange program, a voluntary cooperative exchange of property listing data between licensed real estate brokerage firms, and is provided by SmartMLS through a licensing agreement. Listing information is from various brokers who participate in the SmartMLS IDX program and not all listings may be visible on the site. The property information being provided on or through the website is for the personal, non-commercial use of consumers and such information may not be used for any purpose other than to identify prospective properties consumers may be interested in purchasing. Some properties which appear for sale on the website may no longer be available because they are for instance, under contract, sold or are no longer being offered for sale. Property information displayed is deemed reliable but is not guaranteed. Copyright 2025 SmartMLS, Inc.

Hi there! How can we help you?

Contact us using the form below or give us a call.

Send Us A Message:

I agree to receive marketing and customer service calls and text messages from Sentry Real Estate. To opt out, you can reply 'stop' at any time or click the unsubscribe link in the emails. Consent is not a condition of purchase. Msg/data rates may apply. Msg frequency varies. Privacy Policy.

Do not fill in this field:

This site is protected by reCAPTCHA and the Google Privacy Policy and Terms of Service apply.

Hi there! How can we help you?

Contact us using the form below or give us a call.

Send Us A Message:

Do not fill in this field:

This site is protected by reCAPTCHA and the Google Privacy Policy and Terms of Service apply.

Hi there! How can we help you?

Contact us using the form below or give us a call.

Send Us A Message:

Do not fill in this field:

This site is protected by reCAPTCHA and the Google Privacy Policy and Terms of Service apply.

Do not fill in this field:

This site is protected by reCAPTCHA and the Google Privacy Policy and Terms of Service apply.

Do not fill in this field:

This site is protected by reCAPTCHA and the Google Privacy Policy and Terms of Service apply.

Do not fill in this field:

This site is protected by reCAPTCHA and the Google Privacy Policy and Terms of Service apply.

$

Do not fill in this field:

This site is protected by reCAPTCHA and the Google Privacy Policy and Terms of Service apply.