Pending Continue to Show

Listing Tools

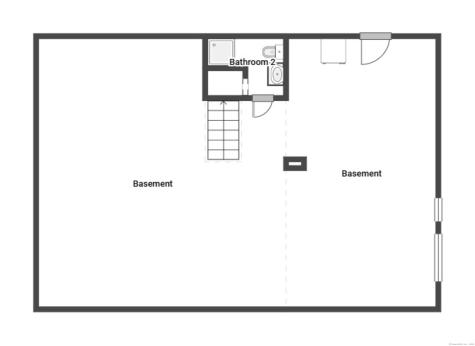
Enjoy a complete Video Walkthrough OR take a Self-Guided 3D Tour 24/7! This move-in-ready 3 Bedroom, 2 Bath Ranch sits on a quiet cul-de-sac in a desirable neighborhood setting. The home features a 0.46-acre lot with a fully fenced backyard, a 24' x 24' oversized detached 2-car garage, maintenance-free vinyl siding, and a 30' x 15' patio with a fire pit, perfect for gatherings. The roof's architectural shingles were replaced 7 years ago. Inside, you'll find hardwood flooring in the Living Room, Hall, and Bedrooms, plus a bright Eat-in Kitchen with durable laminate flooring. The lower level includes an unfinished basement offering great expansion potential and a second full Bath. The home is connected to city water and sewer, heated by an oil-fired forced warm-air system with central air conditioning, and features an oil-fired water heater. Energy efficiency is enhanced with vinyl thermopane windows and storm doors. NOTICE: The Seller requests that "Highest & Best" offers be submitted by noon on Monday, November 3, and they will select the offer they wish to work with shortly thereafter.

Property Details of 233 Oak Ridge Drive

Map Location

Driving Directions

Listed by Gregory E. Hanner of Garden Realty ((860) 608-8659)

The data relating to real estate for sale on this website appears in part through the SmartMLS Internet Data Exchange program, a voluntary cooperative exchange of property listing data between licensed real estate brokerage firms, and is provided by SmartMLS through a licensing agreement. Listing information is from various brokers who participate in the SmartMLS IDX program and not all listings may be visible on the site. The property information being provided on or through the website is for the personal, non-commercial use of consumers and such information may not be used for any purpose other than to identify prospective properties consumers may be interested in purchasing. Some properties which appear for sale on the website may no longer be available because they are for instance, under contract, sold or are no longer being offered for sale. Property information displayed is deemed reliable but is not guaranteed. Copyright 2025 SmartMLS, Inc.

Hi there! How can we help you?

Contact us using the form below or give us a call.

Send Us A Message:

I agree to receive marketing and customer service calls and text messages from Sentry Real Estate. To opt out, you can reply 'stop' at any time or click the unsubscribe link in the emails. Consent is not a condition of purchase. Msg/data rates may apply. Msg frequency varies. Privacy Policy.

Do not fill in this field:

This site is protected by reCAPTCHA and the Google Privacy Policy and Terms of Service apply.

Hi there! How can we help you?

Contact us using the form below or give us a call.

Send Us A Message:

Do not fill in this field:

This site is protected by reCAPTCHA and the Google Privacy Policy and Terms of Service apply.

Hi there! How can we help you?

Contact us using the form below or give us a call.

Send Us A Message:

Do not fill in this field:

This site is protected by reCAPTCHA and the Google Privacy Policy and Terms of Service apply.

Do not fill in this field:

This site is protected by reCAPTCHA and the Google Privacy Policy and Terms of Service apply.

Do not fill in this field:

This site is protected by reCAPTCHA and the Google Privacy Policy and Terms of Service apply.

Do not fill in this field:

This site is protected by reCAPTCHA and the Google Privacy Policy and Terms of Service apply.

$

Do not fill in this field:

This site is protected by reCAPTCHA and the Google Privacy Policy and Terms of Service apply.