Pending Continue to Show

Listing Tools

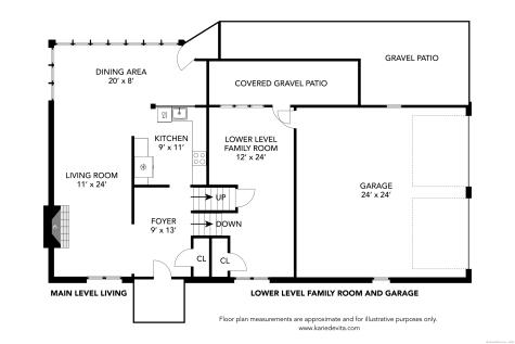
SO MUCH TO LOVE in this charming, cheerful, 4 bedroom home on quiet cul de sac! Over 2000 square feet of living space with new(er) kitchen, CAIR/mini splits, furnace/tankless hot water heater and 2nd floor full bath! The thoughtfully designed custom granite kitchen has bright white cabinetry, lots of smart storage plus radiant tile floors that flow to the spacious dining-sunroom! Lovely views to the peaceful and private flat back yard with large shed and covered structure to store your wood! Cozy living room with wood stove insert, a great alternative heat source! Spacious primary suite is its own private hideaway on 3rd floor with wide plank floors, walk-in closet, walk-up attic and remodeled full bath. 3 other bedrooms plus another updated full bath on the 2nd floor! Family room with doors to back yard and large 2 car attached garage! /bike path leads to Stratton Forest and Town Forest right outside the door! Plenty of sunfilled spaces to work at home, play and relax! Minutes to Tootin Hills School! Enjoy living in Simsbury home to award winning walkable Town center, International Skating Center, Simsbury Meadows Performing Arts Center, notable chefs-reataurants- bakeries, Farmington River, Simsbury Farms, endless recreation plus close to Bradley International Airport! Kitchen 2018, CAIR and mini splits 2019, Full bath 2022 Furnace/tankless H2O heater March 2025! PUT YOUR PERSONAL STAMP ON THIS DELIGHTFUL WEST SIMSBURY PROPERTY AND REAP THE REWARDS!

Property Details of 19 Glenbrook Drive, West Simsbury

Map Location

Driving Directions

Listed by Tara B. Rahmy of Century 21 AllPoints Realty ((860) 558-9913)

The data relating to real estate for sale on this website appears in part through the SmartMLS Internet Data Exchange program, a voluntary cooperative exchange of property listing data between licensed real estate brokerage firms, and is provided by SmartMLS through a licensing agreement. Listing information is from various brokers who participate in the SmartMLS IDX program and not all listings may be visible on the site. The property information being provided on or through the website is for the personal, non-commercial use of consumers and such information may not be used for any purpose other than to identify prospective properties consumers may be interested in purchasing. Some properties which appear for sale on the website may no longer be available because they are for instance, under contract, sold or are no longer being offered for sale. Property information displayed is deemed reliable but is not guaranteed. Copyright 2025 SmartMLS, Inc.

Hi there! How can we help you?

Contact us using the form below or give us a call.

Send Us A Message:

I agree to receive marketing and customer service calls and text messages from Sentry Real Estate. To opt out, you can reply 'stop' at any time or click the unsubscribe link in the emails. Consent is not a condition of purchase. Msg/data rates may apply. Msg frequency varies. Privacy Policy.

Do not fill in this field:

This site is protected by reCAPTCHA and the Google Privacy Policy and Terms of Service apply.

Hi there! How can we help you?

Contact us using the form below or give us a call.

Send Us A Message:

Do not fill in this field:

This site is protected by reCAPTCHA and the Google Privacy Policy and Terms of Service apply.

Hi there! How can we help you?

Contact us using the form below or give us a call.

Send Us A Message:

Do not fill in this field:

This site is protected by reCAPTCHA and the Google Privacy Policy and Terms of Service apply.

Do not fill in this field:

This site is protected by reCAPTCHA and the Google Privacy Policy and Terms of Service apply.

Do not fill in this field:

This site is protected by reCAPTCHA and the Google Privacy Policy and Terms of Service apply.

Do not fill in this field:

This site is protected by reCAPTCHA and the Google Privacy Policy and Terms of Service apply.

$

Do not fill in this field:

This site is protected by reCAPTCHA and the Google Privacy Policy and Terms of Service apply.