Active

Listing Tools

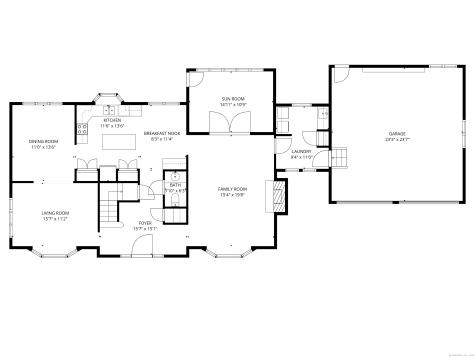
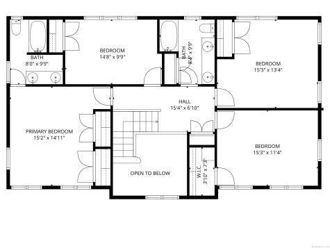
Stunning Colonial in Desirable Cul-de-Sac Neighborhood. Welcome home to this beautifully maintained hipped roof Colonial, perfectly situated in a sought-after cul-de-sac neighborhood. With recent updates and timeless charm, this property offers the ideal blend of comfort, style, and convenience. The first floor boasts a front to back family room with a cozy wood burning fireplace, a large bay window that floods the room with natural light, and French doors leading to a bright four season sunroom a perfect spot to relax year round. The spacious eat-in kitchen features a center island, stainless steel appliances, and plenty of room for casual dining. For more formal gatherings, enjoy the elegant dining room and formal living room, both highlighted by oversized bay windows. Upstairs, retreat to the primary suite with private bath, accompanied by three additional bedrooms and a full hall bath. Throughout the home, gleaming recently refinished hardwood floors add warmth and sophistication. This home has been thoughtfully updated with a newer roof (5 years), new central air, and fresh paint both inside and out. Expansion opportunities abound with unfinished space above the garage and a spacious basement featuring large windows, 9-foot ceilings, and well-placed mechanicals ready for your vision. Conveniently located near UConn, ECSU, major highways, shopping, medical facilities, and dining, this home offers a wonderful lifestyle with nothing left to do but move in!

Property Details of 39 Jacobs Hill Road, Mansfield Center

Map Location

Driving Directions

Listed by Richard Marouski of Weichert,REALTORS-Four Corners ((860) 933-2503)

The data relating to real estate for sale on this website appears in part through the SmartMLS Internet Data Exchange program, a voluntary cooperative exchange of property listing data between licensed real estate brokerage firms, and is provided by SmartMLS through a licensing agreement. Listing information is from various brokers who participate in the SmartMLS IDX program and not all listings may be visible on the site. The property information being provided on or through the website is for the personal, non-commercial use of consumers and such information may not be used for any purpose other than to identify prospective properties consumers may be interested in purchasing. Some properties which appear for sale on the website may no longer be available because they are for instance, under contract, sold or are no longer being offered for sale. Property information displayed is deemed reliable but is not guaranteed. Copyright 2025 SmartMLS, Inc.

Hi there! How can we help you?

Contact us using the form below or give us a call.

Send Us A Message:

I agree to receive marketing and customer service calls and text messages from Sentry Real Estate. To opt out, you can reply 'stop' at any time or click the unsubscribe link in the emails. Consent is not a condition of purchase. Msg/data rates may apply. Msg frequency varies. Privacy Policy.

Do not fill in this field:

This site is protected by reCAPTCHA and the Google Privacy Policy and Terms of Service apply.

Hi there! How can we help you?

Contact us using the form below or give us a call.

Send Us A Message:

Do not fill in this field:

This site is protected by reCAPTCHA and the Google Privacy Policy and Terms of Service apply.

Hi there! How can we help you?

Contact us using the form below or give us a call.

Send Us A Message:

Do not fill in this field:

This site is protected by reCAPTCHA and the Google Privacy Policy and Terms of Service apply.

Do not fill in this field:

This site is protected by reCAPTCHA and the Google Privacy Policy and Terms of Service apply.

Do not fill in this field:

This site is protected by reCAPTCHA and the Google Privacy Policy and Terms of Service apply.

Do not fill in this field:

This site is protected by reCAPTCHA and the Google Privacy Policy and Terms of Service apply.

$

Do not fill in this field:

This site is protected by reCAPTCHA and the Google Privacy Policy and Terms of Service apply.