Active

Listing Tools

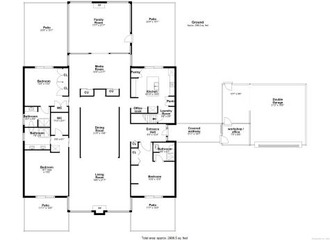
An abundance of windows & glass take advantage of natural light & the beauty of 22 private acres. Designed to be part of the landscape, almost every room has scenic views & access to a patio area. 3 sides, 2,560 feet +/- of the property abuts the 5,800+ acre Natchaug forest. Hiking, hunting & birding at your door. The back portion of the property rises up to an outline of a former 5 acre vineyard, a potential spot for that cabin in the woods. The front part of the property has a beautiful sugarbush. A sweet hobby to add to the homestead. SALE SUBJECT TO PROBATE COURT APPROVAL AND property is SOLD AS IS. Please see interior schematic for approximate room sizes and layout. Eastford has no Zoning Regs. Land Use ordinances are available on line and are extremely land owner friendly. IE: potential for additional buildings, houses or general land use. BUYERS & BUYERS AGENT TO VERIFY ALL INFORMATION.

Property Details of 16 Pilfershire Road

Map Location

Driving Directions

Listed by Robert Viani of Berkshire Hathaway NE Prop. ((401) 741-2432)

The data relating to real estate for sale on this website appears in part through the SmartMLS Internet Data Exchange program, a voluntary cooperative exchange of property listing data between licensed real estate brokerage firms, and is provided by SmartMLS through a licensing agreement. Listing information is from various brokers who participate in the SmartMLS IDX program and not all listings may be visible on the site. The property information being provided on or through the website is for the personal, non-commercial use of consumers and such information may not be used for any purpose other than to identify prospective properties consumers may be interested in purchasing. Some properties which appear for sale on the website may no longer be available because they are for instance, under contract, sold or are no longer being offered for sale. Property information displayed is deemed reliable but is not guaranteed. Copyright 2025 SmartMLS, Inc.

Hi there! How can we help you?

Contact us using the form below or give us a call.

Send Us A Message:

I agree to receive marketing and customer service calls and text messages from Sentry Real Estate. To opt out, you can reply 'stop' at any time or click the unsubscribe link in the emails. Consent is not a condition of purchase. Msg/data rates may apply. Msg frequency varies. Privacy Policy.

Do not fill in this field:

This site is protected by reCAPTCHA and the Google Privacy Policy and Terms of Service apply.

Hi there! How can we help you?

Contact us using the form below or give us a call.

Send Us A Message:

Do not fill in this field:

This site is protected by reCAPTCHA and the Google Privacy Policy and Terms of Service apply.

Hi there! How can we help you?

Contact us using the form below or give us a call.

Send Us A Message:

Do not fill in this field:

This site is protected by reCAPTCHA and the Google Privacy Policy and Terms of Service apply.

Do not fill in this field:

This site is protected by reCAPTCHA and the Google Privacy Policy and Terms of Service apply.

Do not fill in this field:

This site is protected by reCAPTCHA and the Google Privacy Policy and Terms of Service apply.

Do not fill in this field:

This site is protected by reCAPTCHA and the Google Privacy Policy and Terms of Service apply.

$

Do not fill in this field:

This site is protected by reCAPTCHA and the Google Privacy Policy and Terms of Service apply.