Active

Listing Tools

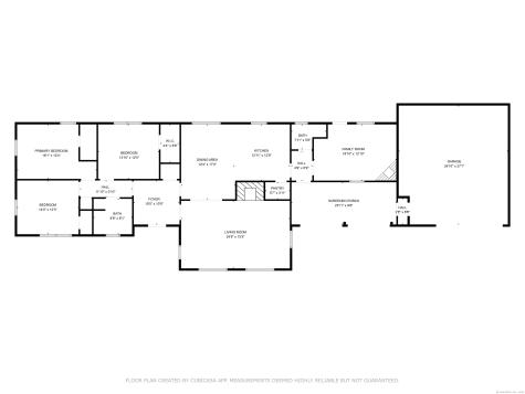
Charming French Country Ranch with Inground Pool in Picturesque Somers, CT! This thoughtfully designed 3-bedroom, 2-bath home offers a warm, functional layout centered around a stunning 15x30 great room with gas fireplace. The open kitchen has granite countertops, hickory cabinets, and flows seamlessly into the dining area with slate floors and oversized windows overlooking the backyard. One wing of the home includes three bedrooms and a full bath, while the opposite wing offers a second full bath, a home office, and the flexible Nantucket room with its own fireplace: ideal as a family room, sitting area, or potential 4th bedroom. French country feel with beautiful stone exterior, newer windows, and a 2017 GAF roof with lifetime transferable warranty. The park-like grounds feature a heated gunite inground pool, hot tub, and lush professional landscaping. An oversized 30x30 two-car garage and large walk-up attic provide excellent storage. Conveniently located near hiking trails, outdoor recreation, and within walking distance to restaurants. Truly a must see!

Property Details of 100 Battle Street

Map Location

Driving Directions

Listed by Trisha White of Rosehaven Real Estate,LLC ((541) 778-4940)

The data relating to real estate for sale on this website appears in part through the SmartMLS Internet Data Exchange program, a voluntary cooperative exchange of property listing data between licensed real estate brokerage firms, and is provided by SmartMLS through a licensing agreement. Listing information is from various brokers who participate in the SmartMLS IDX program and not all listings may be visible on the site. The property information being provided on or through the website is for the personal, non-commercial use of consumers and such information may not be used for any purpose other than to identify prospective properties consumers may be interested in purchasing. Some properties which appear for sale on the website may no longer be available because they are for instance, under contract, sold or are no longer being offered for sale. Property information displayed is deemed reliable but is not guaranteed. Copyright 2025 SmartMLS, Inc.

Hi there! How can we help you?

Contact us using the form below or give us a call.

Send Us A Message:

I agree to receive marketing and customer service calls and text messages from Sentry Real Estate. To opt out, you can reply 'stop' at any time or click the unsubscribe link in the emails. Consent is not a condition of purchase. Msg/data rates may apply. Msg frequency varies. Privacy Policy.

Do not fill in this field:

This site is protected by reCAPTCHA and the Google Privacy Policy and Terms of Service apply.

Hi there! How can we help you?

Contact us using the form below or give us a call.

Send Us A Message:

Do not fill in this field:

This site is protected by reCAPTCHA and the Google Privacy Policy and Terms of Service apply.

Hi there! How can we help you?

Contact us using the form below or give us a call.

Send Us A Message:

Do not fill in this field:

This site is protected by reCAPTCHA and the Google Privacy Policy and Terms of Service apply.

Do not fill in this field:

This site is protected by reCAPTCHA and the Google Privacy Policy and Terms of Service apply.

Do not fill in this field:

This site is protected by reCAPTCHA and the Google Privacy Policy and Terms of Service apply.

Do not fill in this field:

This site is protected by reCAPTCHA and the Google Privacy Policy and Terms of Service apply.

$

Do not fill in this field:

This site is protected by reCAPTCHA and the Google Privacy Policy and Terms of Service apply.